
El Departamento de Ingienería de Enap S.A., a través del Arquitecto Paulo Román, nos solicita el proyecto y modelado 3d, de la Piscina Municipal de la Comuna de Quintero, Región de Valparaíso.
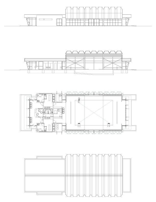
En una primera instancia se desarrolla la maqueta digital según planimetría original, del anteproyecto de la Piscina Municipal.

























Posteriores revisiones entre las partes interesadas permiten ajustar el diseño, redistribuir los espacios y reorientar los objetivos programáticos del proyecto solicitado.
Se reduce la superficie y se enfatiza la altura necesaria para los artefactos de acondicionamiento térmico e iluminación. A continuación, planimetría correspondiente a proyecto definitivo.



